Villa Felicita

A Villa Felicita egy praktikus családi ház, amely kétszintes kialakításban 79 m²-en kínál otthonos életteret. A földszinten tágas, 24 m²-es nappali-konyha, egy szoba és WC található, míg az emeleten két további hálószoba és fürdőszoba kapott helyet. A ház medencével, fedett terasszal és emeleti erkéllyel is rendelkezik — ideális családok számára, akik a modern kényelmet keresik.

Villa Felicita - egyedi családi ház terv - Eventum Homes

👉 YouTube csatornánkon részletes bemutató videókat talál az ingatlanjainkról, melyek segítenek elképzelni leendő otthonát. Kattintson és fedezze fel kínálatunkat!

Villa Felicita - egyedi családi ház terv - Eventum Homes

Kezdőár már

Nettó 420 000 Ft / bruttó m²-től

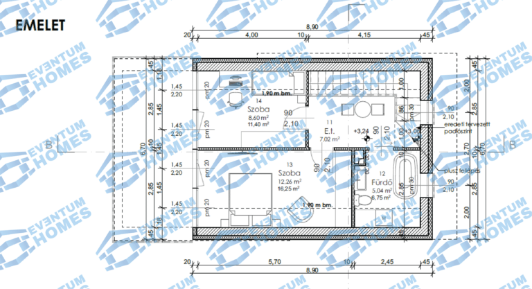
Praktikus családi ház alaprajz — Információ

Ez az újépítésű, praktikus családi ház ideális választás azok számára, akik modern, energiatakarékos és kényelmes otthont keresnek. Az igényes tervezés és precíz kivitelezés eredményeként egy olyan otthont kínálunk, amely maximálisan megfelel a mai elvárásoknak.

  • Tágas és jól kihasználható életterek: Az alsó szinten egy tágas, 24 m²-es nappali-konyha, dolgozószoba és külön WC kapott helyet, míg az emeleten két kényelmes hálószoba és egy fürdőszoba biztosítják a családtagok kényelmét.
  • Modern design és fenntartható építészet: A letisztult vonalvezetés, a modern anyaghasználat és a korszerű technológiák hosszú távon is energiatakarékos és fenntartható otthont garantálnak.
  • Különleges kültér: A fedett terasz és a tágas tetőterasz tökéletes helyszínt nyújtanak a pihenéshez, kerti partikhoz és baráti összejövetelekhez. A medence és az autóbeálló tovább emeli a komfortot.

Műszaki adatok:

  • Nettó alapterület: 79,09 m²
  • Teljes burkolt terület: 88,55 m²
  • Földszint: 46,17 m²
  • Emelet: 32,92 m²
  • Szobák száma: 3
  • Fürdőszobák száma: 2
  • Fedett terasz: ~16 m²
  • Emeleti erkély

A Villa Felicita kétszintes kialakítása ideális térelosztást biztosít: a földszinten a 24,80 m²-es nappali-konyha a ház szíve, amelyből közvetlenül elérhető a fedett terasz. Az emeleten két hálószoba és egy fürdőszoba kap helyet, biztosítva a család számára szükséges privát szférát. Az emeleti erkélyről panorámás kilátás nyílik a kertre és a medencére.

A Villa Felicita típusterv teljes mértékben személyre szabható: az alaprajz, az anyaghasználat és a belső kialakítás is módosítható az Ön igényei szerint. Az építkezés időtartama átlagosan 6–12 hónap, amely a telek adottságaitól, az engedélyezési folyamattól és az időjárási viszonyoktól függően változhat. A kivitelezés tartalmazza az összes szakipari munkát az alapozástól a kulcsrakész átadásig, beleértve a gépészetet, elektromos hálózatot és a burkolatokat is.

Ez az otthon a praktikum, a modern design és a kényelmes családi élet tökéletes kombinációja.

Válassza a biztonságot és a minőséget! Keressen minket még ma, hogy elindíthassuk közös projektünket!

Az ingatlan tulajdonságai

Tartalomjegyzék

Ügyintéző Szakemberünk

Ádám Gábor

Gábor, több mint 15 éve a szakmában van és már nagyon sok családnak személyreszabott megoldásokat nyújtott a csapata segítségével.

Családi ház helyiséglista és alaprajz

H SZ Helyiség Burkolat T (m²)
Fsz. 01 Előtér Kerámia 4,32
Földszint 02 WC Kerámia 2,76
Földszint 03 Szoba Laminált 9,28
Földszint 04 Nappali-konyha Vinyl 24,80
Földszint 05 Lépcső Fa 5,01
Földszint összesen 46,17 m²
Em. 11 Előtér Laminált 7,02
Emelet 12 Fürdő Kerámia 5,04
Emelet 13 Szoba Laminált 12,26
Emelet 14 Szoba Laminált 8,60
Emelet összesen 32,92 m²
Nettó alapterület 79,09 m²
Teljes burkolt terület 88,55 m²

Gyakori kérdések

A Villa Felicita tökéletes választás fiatal családok számára, akik kompakt, de jól kihasználható otthont keresnek medencével. A kétszintes elrendezés lehetővé teszi a közösségi és privát terek szétválasztását, miközben a 79 m²-es alapterület kisebb telken is megvalósítható.

A Villa Felicita kompakt kétszintes kialakítása kisebb telken is jól elhelyezhető. Legalább 400–500 m²-es telek ajánlott, figyelembe véve a medencét, a fedett teraszt és az autóbeállót. A pontos telekméret-igény függ a beépíthetőségtől, amely településenként eltérő — egyes helyeken mindössze 10–15%-os beépítettség engedélyezett.

Igen, a Villa Felicita típusterv teljes mértékben személyre szabható. A szobák mérete, a nappali-konyha elrendezése és az emeleti terek kialakítása is módosítható. Akár harmadik fürdőszoba vagy gardróbszoba is beépíthető az emeletre. Szakértő csapatunk az első konzultációtól a kulcsrakész átadásig segít a tervezésben.

Többféle fűtési megoldás közül választhat, a hagyományos radiátoros rendszertől a padlófűtésen át a korszerű hőszivattyús megoldásig. A választható műszaki megoldások részleteit a Műszaki Leírás oldalunkon tekintheti meg.

A medence nem része az alapárnak, de az Eventum Homes teljes körűen megvalósítja igény szerint. Választható üvegszálas, vasbeton vagy fóliás medence, fűtéssel és takarással kiegészítve. A Villa Felicita tervezésekor a medence elhelyezését már az alaprajz készítésekor figyelembe vesszük, hogy a terasz és a kert harmonikus egységet alkosson.

Megvalósítjuk amiből szeretnéd

A Villa Felicita négyféle szerkezeti megoldással is megépíthető. Válassza ki az Önnek legmegfelelőbb technológiát — mindegyik opció teljes garanciával és szakmai háttérrel készül.

Fa – Fém – Pórusbeton – Kerámia tégla

Fa pallóvázas szerkezetű családi ház - Eventum Homes

Fa pallóvázas szerkezet

A fa pallóvázas szerkezet könnyű és rugalmas, ami gyors építést tesz lehetővé, valamint kiváló hőszigetelési tulajdonságokkal rendelkezik, csökkentve az energiafogyasztást.

Fém szerkezetű családi ház - Eventum Homes

Fém szerkezet

A fém szerkezetű házak tartósak, gyorsan építhetők, tűz- és kártevőállóak, valamint környezetbarátok, alacsony karbantartási igénnyel és hosszú élettartammal.

Pórusbeton szerkezetű családi ház - Eventum Homes

Pórusbeton szerkezet

A pórusbeton szerkezet tűzálló és ellenáll a penésznek, emellett nagy szilárdságot és tartósságot biztosít, ami hosszú élettartamú épületeket eredményez.

Kerámia tégla szerkezetű családi ház - Eventum Homes

Kerámia tégla szerkezet

Kiváló hangszigetelő tulajdonságokkal rendelkezik. Emellett nagy teherbírású és tartós, így hosszú távon is stabil és megbízható épületszerkezetet eredményez.

Hasonló Típustervek

Ezek is tetszeni fognak

Villa del Sole — modern villa napfényes terasszal | Eventum Homes

Villa del Sole

A kényelem és a luxus érzete, hatalmas terasszal és praktikus helyhasználattal.

Villa Casa Verde — természetközeli ház fa burkolattal | Eventum Homes

Villa Casa Verde

Természetközeli, modern faház letisztult dizájnnal és tágas kültéri élettérrel.

Villa Positano látványterv — modern villa belső tér | Eventum Homes

Villa Positano

A modern elegancia és funkcionalitás találkozása, tágas terek és stílusos megoldások egy otthonban.